

The Ballard Oaks seem to be protected, at least for now! There are metal plates and wood chips protecting them from damange.

A developer has applied to remove one of the largest, oldest street trees in Ballard, months after submitting plans to retain it.
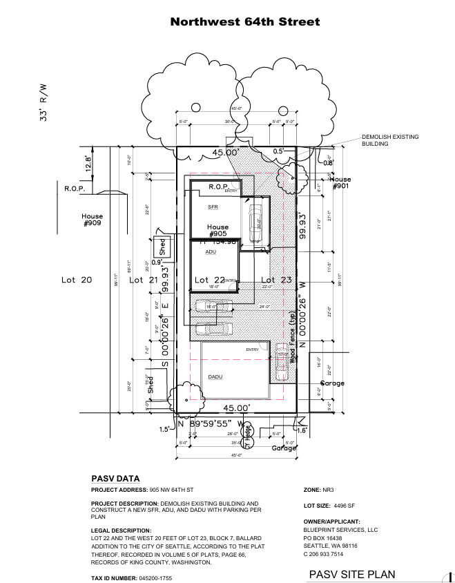
The northern Red Oak at 905 NW 64th St has a trunk almost four feet in diameter, and grows in the public planting strip near another red oak, both likely planted in the 1940s. Together, these twin oaks form a canopy that shades much of the block, and are the largest street trees for blocks in every direction. If one of these trees is removed, the one that remains will not likely survive long term as their roots are intertwined and they protect each other from wind, heat and pollution.
The developer’s site plan to replace the existing house and add two ADUs clears the lot of all existing private property trees. But crucially for the twin oaks, the developer plans to increase parking spots from zero to four – far more than legally required – to increase profits. They asked to add a new curb cut and driveway, which they now want to widen by removing a public tree.
Massive trees like the Ballard Oaks mitigate the climate crisis by cooling urban streets, filtering pollutants and absorbing stormwater. But oak trees – especially northern red oaks – also mitigate the biodiversity crisis, by supporting about 10x the number of wildlife species of any other tree.
Here’s what our friends at West Seattle Nursery say about oaks:
Oak trees are considered a Keystone species. Keystone plants are natives that are essential to our ecosystems because they support 90% of the caterpillar species that enable our terrestrial birds to reproduce, as well as all of our specialist native bee species. Oaks, more than any other North American tree genus, are bustling hubs of life. They offer food, shelter, or both to an astonishing variety of creatures, from birds to bears, insects to spiders. The diverse web of life they support is a testament to their ecological importance. Planting oaks isn't just about adding greenery to our surroundings; it's about nurturing entire ecosystems.
Waive Parking: In their recent comprehensive plan process, Seattle City Council unanimously voted to allow developers to forego required parking to save trees. This project is under the former code, which requires one spot. Why not waive parking entirely for this project and eliminate the driveway?
Smaller Driveway: A narrow driveway with creative design bridging over roots could protect the health of these trees while providing access for cars.

The City has not yet approved destruction of these historic landmark trees. Because the oak is a public street tree, the Seattle Department of Transportation will decide if developer profits and parking take precedence over community well-being, climate resilience and wildlife habitat.
Please send this pre-written email to city leaders and SDOT staff:
To: bruce.harrell@seattle.gov, adiam.emery@seattle.gov, mariam.ali@seattle.gov, seattle.trees@seattle.gov, council@seattle.gov, dan.strauss@seattle.gov
Subject: Save Ballard’s Twin Oaks
Dear Mayor Harrell, SDOT Director Emery, SDOT staff, Seattle City Councilmembers, and CM Dan Strauss:
I am reaching out to ask you to protect the Ballard Twin Oaks, two massive trees owned by the people of Seattle growing in the planting strip at 905 NW 64th. A developer has applied to remove the largest one under SDOTTRLA0001664. Not only will the community lose one of the largest trees in Ballard, the remaining twin is unlikely to survive long term, as the pair’s roots and canopy are closely intertwined.
Decades ago, this oak and its nearby twin were planted so that future generations could benefit from the shade, cooling and clean air produced in abundance by this massive tree. We are that generation and our health and safety is now at risk from unchecked climate change. Removing this tree (and likely damaging its twin) in order to park cars is the opposite of smart planning for climate resilience.
We ask that you waive the parking requirement for this one project, or protect both trees with a narrow driveway constructed to bridge over the critical root zones of these iconic trees.
Sincerely,
[Your Name]
